{title}
{publish}
{head}
Nhà phố Vinhomes Green City Long An đang được nhiều nhà đầu tư quan tâm khi dòng vốn đang dần dịch chuyển sang các thị trường bất động sản vệ tinh có tiềm năng tăng trưởng. Nằm trong dự án Green City tại huyện Đức Hòa, tỉnh Long An, loại hình nhà phố được phát triển với thiết kế 5 tầng, diện tích linh hoạt và nằm ven các trục đường nội khu. Bên cạnh đó, với giá bán cạnh tranh và tiềm năng khai thác dòng tiền tốt, nhà phố Vinhomes Long An đang nổi lên như điểm đầu tư đáng chú ý trong năm 2025.
Bài viết dưới đây sẽ giúp quý khách đánh giá toàn diện những lý do vì sao nhà phố tại dự án là lựa chọn đầu tư lý tưởng. Hãy theo dõi ngay!
Quý khách quan tâm có thể bấm xem mọi thông tin và phân tích chuyên sâu về dự án từ chuyên gia có 7 năm kinh nghiệm tại Long An tại: VINHOMES GREEN CITY
Lý do nhà phố Vinhomes Green City Long An là lựa chọn đầu tư lý tưởng
Sở hữu mức giá khởi điểm hợp lý, thiết kế tối ưu công năng và khả năng khai thác dòng tiền hiệu quả, nhà phố Vinhomes Long An hội tụ đầy đủ các yếu tố cần thiết của một sản phẩm đầu tư an toàn, tiềm năng tăng giá rõ rệt và dễ dàng thanh khoản trong trung hạn.
Thiết kế thông minh, đa dạng công năng
Một trong những khác biệt giúp nhà phố Green City trở thành lựa chọn đáng cân nhắc cho nhà đầu tư là thiết kế hướng đến tối đa hóa công năng sử dụng.
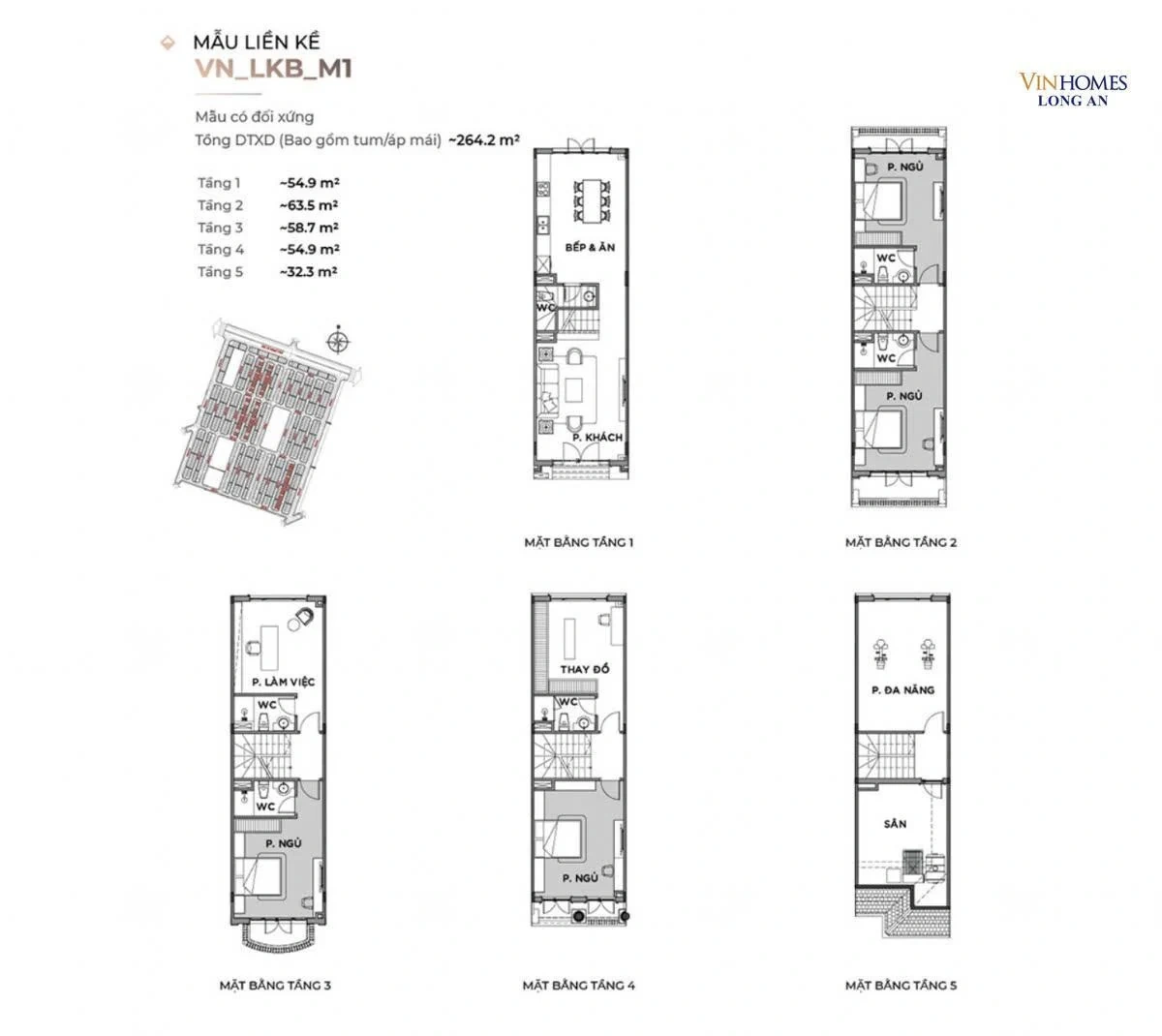
Nhà phố tại đây sở hữu diện tích linh hoạt từ 70m2 đến 150m2 và cao tối đa 5 tầng. Điều này giúp nhà phố phù hợp với nhiều mô hình khai thác đầu tư, từ việc sử dụng từng tầng cho mục đích cho thuê riêng biệt đến vận hành mô hình kinh doanh tại gia.
Đặc biệt, sự hợp lý trong bố trí không gian theo từng tầng như phòng khách, bếp, khu vực làm việc, sân thượng và các phòng đa năng, cho phép nhà đầu tư thiết kế mô hình vừa ở vừa cho thuê hoặc khai thác kinh doanh nhỏ một cách hiệu quả.

Mặt bằng thiết kế nhà phố Vin Long An (hình minh họa)
Điều này tạo ra giá trị sử dụng vượt trội, không chỉ phục vụ nhu cầu cư trú mà còn dễ dàng sinh lời thực tế, đặc biệt trong bối cảnh nhu cầu thuê tại các vùng vệ tinh đang gia tăng theo tốc độ phát triển công nghiệp.
Để hiểu rõ hơn về giá bán, bảng hàng nhà phố theo từng phân khu, quý khách có thể bấm xem ngay tại: NHÀ PHỐ VINHOMES GREEN CITY
Với lợi thế nằm trong khu đô thị đồng bộ, do Vinhomes phát triển và định vị ở phân khúc cao cấp tại Long An, mức giá hiện tại được xem là phù hợp để sở hữu.

Minh họa nhà liền kề Vinhome Long An
Lịch sử giao dịch tại các khu đô thị Vinhomes như Vinhomes Ocean Park (Gia Lâm), Vinhomes Grand Park (TP.Thủ Đức), có thể thấy mức giá nhà phố đã có tốc độ tăng từ 80% đến hơn 200% chỉ sau 2 đến 3 năm kể từ thời điểm mở bán.
Sự tăng giá này không chỉ đến từ yếu tố thương hiệu Vinhomes uy tín, mà chủ yếu đến từ quy hoạch tổng thể, tốc độ hoàn thiện hạ tầng giao thông khu vực và tốc độ lấp đầy dân cư.
Trong bối cảnh Long An đang được quy hoạch là vùng phát triển đô thị vệ tinh phía Tây TP.HCM, và đặc biệt là các trục hạ tầng chiến lược như Vành đai 3, Quốc lộ N2 đang bước vào giai đoạn nâng cấp và kết nối toàn diện, thì tiềm năng tăng giá tại nhà phố Green City là hoàn toàn có cơ sở.
Khả năng khai thác dòng tiền ổn định
Khác với các sản phẩm đầu tư mang tính tích trữ tài sản đơn thuần, nhà phố Vin Long An còn có khả năng tạo ra dòng tiền thực tế nếu được vận hành đúng cách.
Với thiết kế 5 tầng, nhà đầu tư có thể khai thác tối đa công năng bằng cách cho thuê theo tầng, biến tầng 1 thành mặt bằng kinh doanh hoặc văn phòng đại diện, các tầng trên có thể cho thuê ở dài hạn hoặc homestay tùy vào nhu cầu khu vực.
Lợi thế của khu vực Đức Hòa – nơi dự án tọa lạc – nằm ở sự phát triển nhanh chóng của hàng loạt KCN như Tân Đức, Hải Sơn,... nơi tập trung hàng trăm nghìn lao động chất lượng và chuyên gia làm việc dài hạn.
Điều này tạo ra nhu cầu thuê ổn định, lâu dài cho loại hình nhà phố cao tầng. Việc khai thác cho thuê có thể mang lại dòng tiền từ 20 đến 40 triệu đồng mỗi tháng.
Với nhà phố Vinhomes Long An, sản phẩm được phát triển bởi chủ đầu tư uy tín, nằm trong khu đô thị được quy hoạch bài bản và có pháp lý sở hữu lâu dài.
Đây là ba yếu tố cốt lõi tạo ra niềm tin cho thị trường thứ cấp và giúp nhà đầu tư dễ dàng bán lại trong các chu kỳ điều chỉnh hoặc khi cần thu hồi vốn.
Khác với biệt thự khó tiếp cận với phần lớn người mua hoặc căn hộ phải phụ thuộc vào thị trường cho thuê ngắn hạn, nhà phố có thể linh hoạt tiếp cận nhiều đối tượng: người mua ở thực, doanh nghiệp nhỏ cần mặt bằng, nhà đầu tư cá nhân cần tài sản có dòng tiền.
Điều này giúp nâng cao khả năng thanh khoản, đồng thời giảm thiểu rủi ro đầu tư khi thị trường biến động.
Nhà phố Vinhomes Green City là lựa chọn đầu tư hợp lý cho nhà đầu tư tìm kiếm sản phẩm có khả năng tăng giá, dễ khai thác dòng tiền và thanh khoản tốt. Thiết kế linh hoạt, giá vào tốt và tiềm năng hạ tầng rõ rệt tạo nên lợi thế cạnh tranh vượt trội. Đây là thời điểm phù hợp để xuống tiền, trước khi giá trị bị điều chỉnh theo nhịp tăng trưởng mới của thị trường.
VINHOMES LONG AN SR - VINHOMES GREEN CITY
THÔNG TIN CHÍNH THỨC TỪ VINHOMES
Địa chỉ: Đường Quốc Lộ N2, thị trấn Hậu Nghĩa, huyện Đức Hòa, tỉnh Long An
Website: https://vinhomeslongansr.vn/
Facebook: https://www.facebook.com/vinhomeslongansr
X.com: https://x.com/vinhomeslongan
Youtube: https://www.youtube.com/@vinhomeslongansr
Pinterest: https://www.pinterest.com/vinhomeslongansr/
Du lịch quốc tế ngày càng phát triển, việc giữ kết nối Internet ổn định khi ra nước ngoài trở thành nhu cầu thiết yếu của du khách. Đặc biệt với những điểm đến như Thái Lan,...
Trong bối cảnh các sự kiện ngoài trời ngày càng được tổ chức đa dạng về hình thức và quy mô, nhu cầu thuê nhà bạt chất lượng, linh hoạt và chuyên nghiệp trở thành yếu tố then...
Năm 2025 ghi dấu một hành trình đầy tự hào và xúc động của Tân Thanh Container. Giữa bối cảnh kinh tế đầy biến động, Tân Thanh không chỉ khẳng định vị thế của một doanh nghiệp...
Trong thời kỳ chuyển đổi số đang diễn ra mạnh mẽ, các doanh nghiệp sản xuất tại Việt Nam không ngừng tìm kiếm những công cụ quản lý hữu hiệu nhằm cải thiện quy trình hoạt động....
Ngày nay, các công trình nhà kính ngày càng trở nên phổ biến. Chính vì vậy mà việc lựa chọn phim cách nhiệt cũng ngày càng được quan tâm. Vậy thì quy trình để dán phim cách...
Trong lĩnh vực thiết bị giám sát hành trình xe ô tô, camera và các giải pháp quản lý phương tiện, Adsun luôn kiên định với mục tiêu mang đến cho khách hàng sản phẩm chất lượng...
TP. Hồ Chí Minh, ngày 19/12/2025 - Tại Lễ trao giải Vạn Xuân Awards 2025, Ngân hàng TMCP Quân đội (MB) được vinh danh ở hai hạng mục: “Ngân hàng sáng tạo của năm 2025” và...