{title}
{publish}
{head}
A&T Saigon Riverside đã mang đến giải pháp tối ưu với Thiết kế căn hộ diện tích vừa phải, thông minh và tiện nghi. Loại hình căn hộ này không chỉ tối ưu hóa công năng sử dụng mà còn tạo nên không gian sống thoải mái, phù hợp với đa dạng đối tượng khách hàng, từ gia đình trẻ đến những người độc thân năng động. Cùng khám phá những điểm đặc biệt trong thiết kế căn hộ A&T Saigon Riverside , nơi kiến tạo nên tổ ấm lý tưởng cho bạn.

Phong cách thiết kế căn hộ A&T Saigon Riverside
Căn hộ A&T Saigon Riverside mang đến một phong cách thiết kế hiện đại, đề cao sự tối giản nhưng vẫn đảm bảo tính thẩm mỹ và công năng sử dụng. Các căn hộ được thiết kế theo không gian mở, kết nối liền mạch giữa phòng khách, phòng bếp và phòng ăn, tạo cảm giác rộng rãi và thoáng đãng. Việc sử dụng các gam màu trung tính kết hợp với điểm nhấn từ nội thất và ánh sáng tự nhiên giúp tạo nên không gian sống hài hòa, tinh tế.
Đặc biệt, mỗi căn hộ đều sở hữu ban công riêng, mở ra tầm nhìn thoáng đãng, vừa là nơi thư giãn lý tưởng, vừa đón ánh sáng và gió trời tự nhiên vào nhà. A&T Saigon Riverside chú trọng đến từng chi tiết nhỏ, từ việc lựa chọn vật liệu xây dựng đến bố trí không gian, nhằm mang đến cho cư dân một cuộc sống tiện nghi và thoải mái nhất.

Mặt bằng chi tiết căn hộ A&t Sai Gon Riverside
Mỗi căn hộ đều được thiết kế tỉ mỉ, tối ưu hóa công năng sử dụng và tận dụng tối đa ánh sáng tự nhiên. Với đa dạng các loại căn hộ và diện tích linh hoạt, A&T Saigon Riverside đáp ứng nhu cầu của nhiều đối tượng khách hàng. Nếu bạn quan tâm đến việc sở hữu một căn hộ tại đây, hãy tham khảo ngay chi tiết giá bán căn hộ A&T Saigon Riverside để có lựa chọn phù hợp nhất.

Phân tích chi tiết mặt bằng căn hộ A&T Saigon Riverside
Mặt bằng căn hộ A&T Saigon Riverside được thiết kế thông minh, tối ưu hóa không gian sống và mang đến sự thoải mái tối đa cho cư dân. Điểm nhấn đầu tiên chính là bố cục mở, kết nối liền mạch phòng khách, phòng ăn và bếp, tạo nên không gian sinh hoạt chung rộng rãi, thoáng đãng và tràn đầy năng lượng. Sự kết nối này không chỉ mang đến cảm giác ấm cúng cho gia đình mà còn giúp tận dụng tối đa ánh sáng tự nhiên, lan tỏa khắp căn hộ.
Các phòng ngủ được bố trí khéo léo, tách biệt với khu vực sinh hoạt chung, đảm bảo sự riêng tư và yên tĩnh cho mỗi thành viên. Đặc biệt, mỗi phòng ngủ đều được ưu ái ban tặng cửa sổ lớn đón nắng gió tự nhiên, tạo nên không gian nghỉ ngơi thư thái và trong lành.
Ban công rộng rãi là điểm cộng hoàn hảo cho thiết kế căn hộ A&T Saigon Riverside . Đây là nơi lý tưởng để bạn thư giãn, tận hưởng những tách cà phê thơm ngon vào mỗi buổi sáng, ngắm nhìn toàn cảnh thành phố lung linh về đêm hay dòng sông êm đềm trôi. Bạn cũng có thể thỏa sức sáng tạo, biến ban công thành một khu vườn nhỏ xinh, mang thiên nhiên xanh mát vào cuộc sống.
Ngoài ra, căn hộ còn được bố trí thêm logia tiện dụng, có thể sử dụng làm khu vực giặt phơi, kho chứa đồ hoặc biến tấu thành một góc làm việc nhỏ gọn, tiết kiệm diện tích mà vẫn đảm bảo tính thẩm mỹ cho không gian sống.
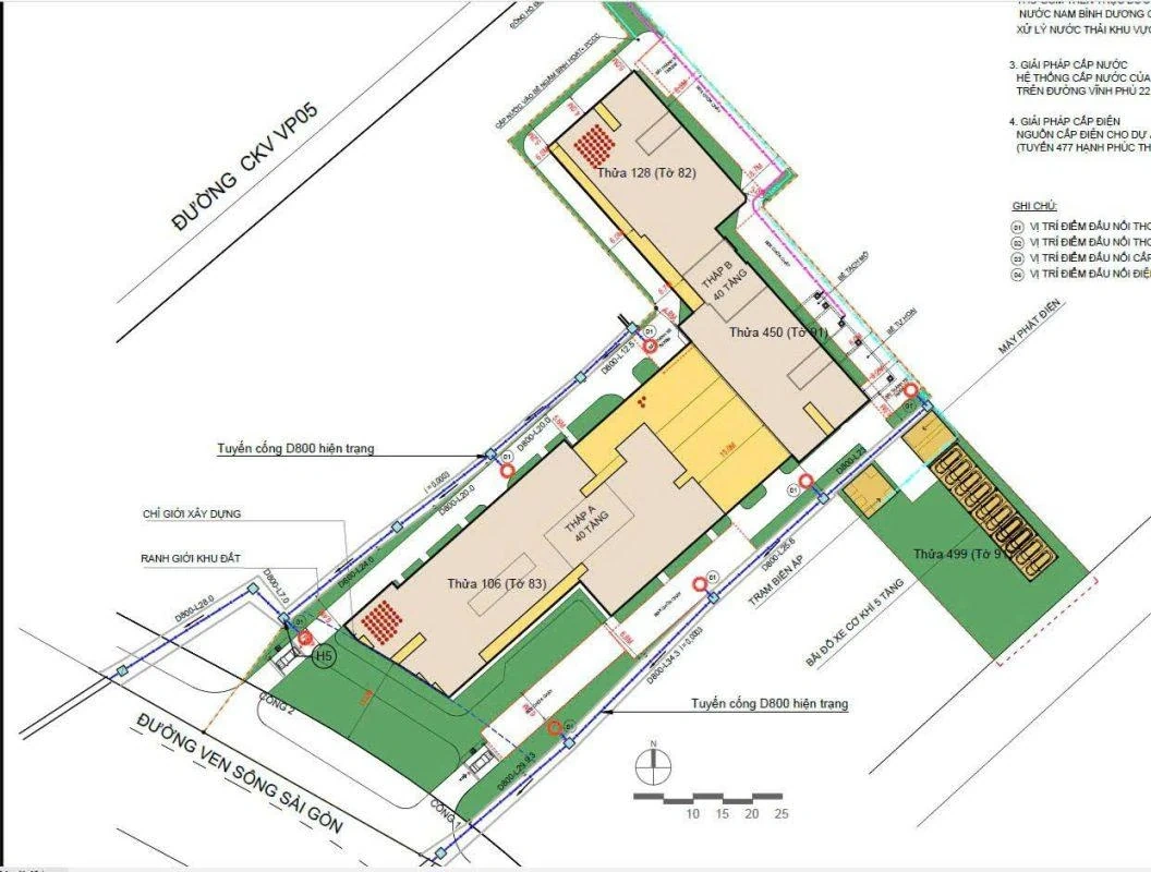
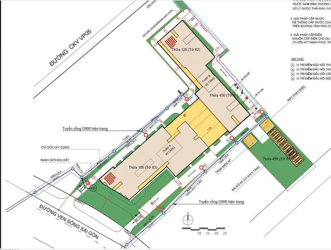
Không chỉ sở hữu thiết kế căn hộ tinh tế và tiện nghi, A&T Saigon Riverside còn được quy hoạch tổng thể một cách khoa học và thông minh. Để khám phá chi tiết về cách bố trí các tòa nhà, tiện ích nội khu và từng loại căn hộ, mời bạn tham khảo thêm mặt bằng chi tiết dự án A&T Saigon Riverside .
Căn hộ 2PN-1WC
Loại căn hộ 2PN-1WC có diện tích từ 50.15 – 51.15 – 52.51 – 53.1m2, các căn hộ thiết kế đều tối ưu không gian, có ban công thông thoáng, các phòng chức năng đều có cửa sổ lớn.

Căn hộ 2PN-2WC
Loại căn hộ 2PN-2WC A&T Saigon Riverside có diện tích từ 57.95 – 60 – 61.57 – 63.31m2. Các căn hộ có layout vuôn vứt đẹp, thiết kế có ban công và logia riêng thông thoáng, phòng ngủ có cửa sổ lớn đón ánh sáng tự nhiên.

Căn hộ 3PN
Diện tích: 79.61m2
Vị trí góc trên mặt bằng tầng
Các phòng ngủ đều thông thoáng, view đẹp panorama về sống Sài Gòn, Landmark 81
Phù hợp cho gia đình nhiều thanh viên, hoặc gia đình ưa thích không gian rộng rãi.
Penhouse A&T Saigon Riverside
Diện tích: 185.28m2 đến 298.68m2
Thiết kế gồm 2 tầng, có cầu thàng cố định
Có sân vườn riêng
Số lượng 10 căn cho toàn dự án.
Nội thất và vật liệu hoàn thiện
Chủ đầu tư A&T Saigon Riverside đã ưu tiên sử dụng các thương hiệu nội thất cao cấp, mang đến sự sang trọng, tinh tế và bền bỉ cho từng căn hộ.
Sàn gỗ công nghiệp chống thấm: Inovar/Robina/Thaixin
Tường và trần sơn nước cao cấp: Dulux/ Jotun/Nippon
Thiết bị vệ sinh từ các thương hiệu nổi tiếng: TOTO, Kohler, Grohe.
Bồn rửa: Malloca/Hafele/Faster
Cửa gỗ lõi thép, cách âm và chống cháy 60 phút: An Cường
Khóa từ 4 chức năng: Yale
Kết luận
Với thiết kế thông minh, hiện đại, chú trọng tối ưu hóa không gian và công năng sử dụng, căn hộ a&t saigon riverside thực sự là lựa chọn lý tưởng cho những ai đang tìm kiếm một tổ ấm tiện nghi và thoải mái. Diện tích vừa phải, bố cục mở cùng với sự kết hợp hài hòa giữa yếu tố thẩm mỹ và công năng đã tạo nên không gian sống hoàn hảo, đáp ứng đa dạng nhu cầu của cư dân. A&T Saigon Riverside không chỉ là một nơi để ở mà còn là nơi để tận hưởng cuộc sống, gắn kết yêu thương và vun đắp những kỷ niệm đáng nhớ bên gia đình.
Cá kho Làng Vũ Đại nhiều năm qua đã trở thành món ăn mang dấu ấn truyền thống đặc trưng của Hà Nam và là lựa chọn hàng đầu trong dịp biếu tặng cuối năm. Nhờ bí quyết kho cá...
Trong nhiều năm, truyền hình trung ương luôn chiếm ưu thế về mức độ phủ sóng và lượng người xem. Tuy nhiên, sự phát triển mạnh của các đài truyền hình địa phương trong thời...
Trong bối cảnh thị trường bán lẻ ngày càng cạnh tranh, doanh nghiệp không chỉ cần sản phẩm chất lượng mà còn phải tối ưu cách trưng bày để thu hút khách hàng. Một trong những...
Tết 2026 ghi nhận xu hướng du lịch mới khi nhiều gia đình Việt chọn nghỉ dưỡng ở nước ngoài thay vì các điểm đến trong nước như những năm trước. Trong nhóm quốc gia được tìm...
Định vị xe máy Viettel là một thiết bị quan trọng trong thời đại 4.0 nhờ khả năng xác định vị trí theo dõi thời gian thực. Sản phẩm này không chỉ hỗ trợ quản lý phương tiện và...
Haruco là thương hiệu thiết bị chăm sóc sức khỏe được nhiều người quan tâm và tìm kiếm hiện nay. Liệu các sản phẩm này có thực sự mang lại hiệu quả và chất lượng? Hãy cùng tìm...
Bảng giá bê tông tươi luôn là thông tin được quan tâm khi chuẩn bị thi công các hạng mục như móng, cột, dầm hay sàn. Năm 2025 giá bê tông có nhiều biến động theo thị trường vật...