{title}
{publish}
{head}
Đã hơn 7 năm kể từ khi Dự án Đại siêu thị và trung tâm phân phối vùng của Tập đoàn Phú Thái tại phường Vân Phú, tỉnh Phú Thọ bị chấm dứt hoạt động và thu hồi giấy chứng nhận đầu tư, đến nay hàng chục hộ dân có đất nằm trong quy hoạch (chưa nhận tiền đền bù, giải phóng mặt bằng - GPMB) vẫn mòn mỏi gửi đơn kiến nghị đến các cơ quan chức năng, chờ đợi câu trả lời cuối cùng để định đoạt tài sản bị “treo” suốt hơn một thập kỷ.

Ông Trần Xuân Hiển là một trong những hộ dân có đất bị “treo” quy hoạch suốt nhiều năm qua
Đất "vàng" bỏ hoang, thiệt hại kép cho người dân
Nhiều người dân có đất ở dọc đường Hùng Vương (phường Vân Phú) cho biết, suốt nhiều năm qua, họ không thể sử dụng, xây dựng hoặc thực hiện các quyền hợp pháp khác trên những thửa đất của mình. Nguyên nhân là do những thửa đất này nằm trong diện thu hồi, GPMB để thực hiện Dự án Đại siêu thị và trung tâm phân phối vùng của Tập đoàn Phú Thái từ năm 2009. Dự án có tổng diện tích hơn 49.000m2 tại vị trí đắc địa, là trục đường sầm uất bậc nhất trung tâm tỉnh Phú Thọ.
Tuy nhiên, do vướng mắc trong công tác GPMB đối với diện tích đất ở, đặc biệt là việc không đạt được đồng thuận về giá đền bù với các hộ dân, dự án đã không thể triển khai. Cuối tháng 9/2018, UBND tỉnh Phú Thọ đã ban hành Quyết định số 2811 chính thức chấm dứt hoạt động và thu hồi giấy chứng nhận đầu tư đã cấp cho Tập đoàn Phú Thái.
Mặc dù vậy, đất ở thuộc diện thu hồi đã không được Tập đoàn Phú Thái phối hợp với cơ quan chức năng lập hồ sơ điều chỉnh đưa ra khỏi quy hoạch. Sự chậm trễ này đã đẩy hàng chục hộ dân vào tình cảnh không được quyền sử dụng đất trên chính mảnh đất hợp pháp của mình.

Khu đất “treo” thuộc vị trí vàng, sát quốc lộ 2, thuộc phường Vân Phú
Đầu tháng 12/2025, toàn bộ khu đất dự án cũ vẫn chỉ là bãi đất trống, cỏ dại mọc um tùm. Khu vực đất ở (băng 1) nằm tiếp giáp ngay mặt đường Hùng Vương (QL 2) của các hộ dân cũng trong tình trạng hoang hóa, không một căn nhà nào được xây dựng hoặc cải tạo do vướng quy hoạch.
Ông Trần Xuân Hiển (phường Vân Phú), một trong những hộ có đất bị thu hồi. Sự bức xúc hiện rõ trong gương mặt mệt mỏi khi nhắc về thuở đất bị “treo”. Mảnh đất của ông mua lại từ trước năm 2009 nhưng chưa kịp sang tên đổi chủ thì có quyết định thu hồi.
“Trường hợp của tôi đã có quyết định thu hồi đất. Mặc dù chưa được cấp sổ đỏ nhưng việc mua bán đã được chính quyền địa phương chứng thực hợp pháp. Cũng vì dự án không triển khai mà cũng không trả lại đất cho dân nên tôi không thể làm được sổ đỏ, đơn thư gửi đi nhiều lắm rồi,” ông Hiển chia sẻ.
Ông Hiển cũng cho biết thêm, nếu hiện tại mới làm thủ tục cấp sổ đỏ, giá đất để xác định chi phí đã cao hơn rất nhiều so với thời điểm năm 2009, gây thiệt thòi lớn cho người dân. Ông nhấn mạnh: "Trách nhiệm của Tập đoàn Phú Thái rất rõ ràng là khi bị thu hồi dự án đã không phối hợp đưa đất của chúng tôi ra khỏi quy hoạch."
Chờ đợi câu trả lời xác đáng
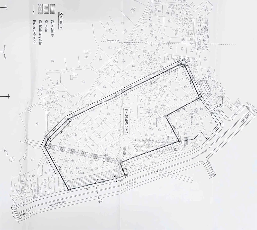
Dự án của Tập đoàn Phú Thái được UBND tỉnh Phú Thọ cấp giấy chứng nhận đầu tư ngày 30/7/2008 và được cho thuê đất để thực hiện theo Quyết định số 968/QĐ-UBND ngày 21/4/2009, với tổng diện tích 49.493m2.
Doanh nghiệp đã hoàn thành thu hồi, bồi thường GPMB 46.803m2 đất nông nghiệp. Tuy nhiên, đối với diện tích 2.690m2 đất ở còn lại (của 10 hộ dân), mặc dù UBND Thành phố Việt Trì (cũ) đã ban hành Quyết định thu hồi đất từ năm 2009 nhưng chưa thể thực hiện việc kiểm kê, bồi thường do vướng mắc về giá đền bù, dẫn đến dự án đình trệ và bị chấm dứt hoạt động vào năm 2018.
Từ năm 2018 đến nay, các cơ quan chức năng của tỉnh Phú Thọ đã có nhiều văn bản đề nghị Tập đoàn Phú Thái phối hợp lập hồ sơ điều chỉnh quyết định thu hồi đất, nhằm đưa diện tích đất ở 2.690m2 ra khỏi quy hoạch dự án để trả lại quyền sử dụng đất cho các hộ dân. Đáng tiếc, phía doanh nghiệp vẫn chưa có động thái giải quyết dứt điểm vấn đề này.

Bản đồ quy hoạch của dự án
Ông Lê Huy Hà - Phó Chủ tịch UBND phường Vân Phú cho biết: "Sự việc các hộ dân có đất ở trong vùng dự án kiến nghị, yêu cầu trả lại đất sau khi dự án bị chấm dứt đã tồn tại nhiều năm nay. Hiện nay, phường đang khẩn trương hoàn thành việc đo đạc, xác định chính xác diện tích đất của các hộ dân để làm cơ sở báo cáo UBND tỉnh, xin ý kiến chỉ đạo tiếp theo nhằm giải quyết dứt điểm kiến nghị kéo dài này, đảm bảo quyền lợi chính đáng cho người dân”.
Các hộ dân đang rất cần một quyết định dứt khoát và kịp thời từ các cấp chính quyền tỉnh Phú Thọ để tháo gỡ vướng mắc, chấm dứt tình trạng đất “treo” kéo dài suốt hơn một thập kỷ qua.
Trang Thùy
baophutho.vn Trong quá trình triển khai mô hình chính quyền địa phương 2 cấp, việc phát sinh những khó khăn là khó tránh khỏi. Thực tế cho thấy, khi tiếng...
Trả lời kiến nghị của các địa phương về tổ chức và hoạt động của đơn vị sự nghiệp công lập, Bộ Nội vụ cho biết đã và đang triển khai đồng bộ nhiều giải pháp nhằm hoàn thiện thể...
Chậm nhất đến ngày 1/7/2027, các bộ, ngành, cơ quan trung ương, địa phương phải hoàn thành việc bố trí vào vị trí việc làm và xếp ngạch tương ứng với vị trí việc làm đối với...
Nghị định số 21/2026/NĐ-CP sửa đổi, bổ sung nhiều quy định quan trọng về điều kiện, hồ sơ và thẩm quyền cấp giấy phép khai thác khoáng sản.
baophutho.vn UBND tỉnh vừa ban hành Quyết định số 2381/QĐ-UBND về việc công bố Danh sách cơ sở không đảm bảo yêu cầu về phòng cháy, chữa cháy (PCCC) và...
baophutho.vn Với địa hình đồi, núi phức tạp tiềm ẩn nguy cơ cao xảy ra thiên tai, xã Tân Mai là một trong những địa phương chịu thiệt hại nặng nề nhất trên...
baophutho.vn Thời gian gần đây, nhiều hộ dân xóm Thao Con, xã Mường Động, tỉnh Phú Thọ bức xúc trước việc tiền hỗ trợ bồi thường, giải phóng mặt bằng dự án...